Este website utiliza cookies.

Ao concordar, você aceita a sua utilização. Saber mais.

Eu concordo!

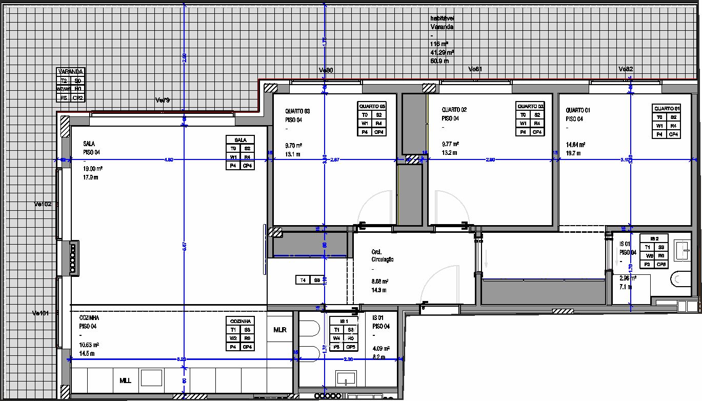
Fracção AB - T3 - Piso 4

fracção E

Cave -1 - Estacionamento nº 3 - Arrecadação nº 1

fracção AB

Alçado Nascente Fracção AB

fracção AB

Alçado Norte/Sul Fracção AB

fracção AB
Piso 4 - Fracção AB
T3
  • Suites : 1
  • Quartos: 2
  • WC's: 2 (1 em suite)
  • Cozinha
  • Sala
  • Varanda
  • Estacionamento nº 3
  • Arrecadação nº 1
areas_fraccao_k2.jpg